Обяви 0 За нас Контакти
Продава 2-СТАЕН
град Варна, Гръцка махала
133 060 €
260 242.74 лв.

(1 986 €, 3 884.28 лв./m2)
Не се начислява ДДС
История на цената
Коригирана в 10:47 на 24 март, 2026 год.
Обявата е посетена 1357 пъти.
Площ:
67 m2
Строителство:
Тухла, Не е въведен в експлоатация

Описание на имота:


Имоти Премиер предлага на вашето внимание 🏡 двустаен апартамент в новострояща се сграда централна част на Варна, в близост до ЖП гара.

Представяме ви просторен и функционален двустаен апартамент, разположен в модерна сграда в процес на изграждане. Жилището е проектирано с внимание към детайла, осигурявайки комфорт и отлично разпределение на помещенията.

✨ Характеристики на имота:

Тип: двустаен апартамент
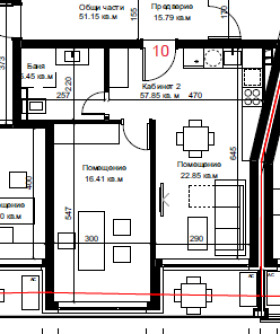
Всекидневна с кухненска зона: 22.85 кв.м
Спалня : 16.41 кв.м
Лоджия: 4.89 кв.м
Баня с тоалетна: 5.45 кв.м
Състояние: по БДС шпакловка, замазка, изградени ВиК и ел. инсталации до тапа
🏗 За сградата:

Съвременна архитектура и висококачествено строителство
Луксозно изпълнени общи части
Енергийно ефективни материали
Контролиран достъп и асансьор
📍 Локация:

Имотът се намира в централната част на Варна, в непосредствена близост до ЖП гара, автобусни спирки, магазини, училища и административни услуги. Районът предлага отлична комуникация с всички точки на града и е подходящ както за живеене, така и за отдаване под наем.

Към имота има и възможност за закупуване на парко място.

Имот 379443
Особености
Тухла
За контакт:
0877590038
Брокер:
Николай Георгиев
0877590038
Офис: гр. Варна, ул. Георги Бенковски 90, ет. 6, офис 20
Още оферти от брокера: Продава | Дава под наем | Купува | Наема
Агенция:
ИМОТИ ПРЕМИЕР
0879590022
ИМОТИ ПРЕМИЕР logo
Медал за прослужено време
В imot.bg от 2014 г.
imotipremier.imot.bg
Адрес:
област Варна, гр. Варна, ул. Георги Бенковски 90 ет.6 оф.20
http://imotipremier.com
ИЗПРАТИ ЗАПИТВАНЕ
ИЗПРАТИ ЗАПИТВАНЕТО

Продава 2-СТАЕН
град Варна, Гръцка махала
Обява: 1b176977887526309

133 060 €
260 242.74 лв.
История на цената
(1 986 €, 3 884.28 лв./m2)

Не се начислява ДДС
ЗАПАЗИ ОБЯВАТА

Местоположение: град Варна, Гръцка махала

Допълнителни данни за имотите в района и сравнение с други райони

Покажи

Период

и 5 месеца

* Средните цени са определени чрез медианна стойност